"設計是一種職業更因該是一種興趣,設計作品不只是為了讓客戶滿意,更應該、讓自己滿意"
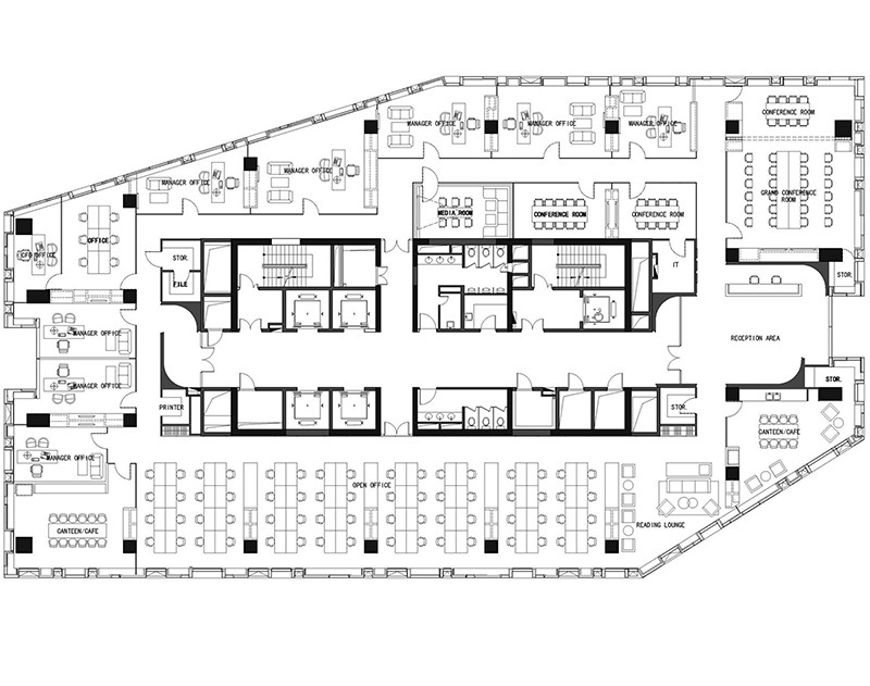
芒果影業辦公室設計采用大量木飾面和超白鋼化玻璃,并且吊頂用不銹鋼格柵鏤空設計,充分體現了影業既視感。這樣的簡約風格設計,非常符合芒果影業的品牌形象。
1989年上海大學室內設計專業
1999年同濟大學室內裝潢高級研修班
近三十年專業室內設計經歷,積累大量中外高端大型辦公室裝修設計案例,
熟悉國內及歐美等主流風格及發展方向,曾從業于建筑、結構、施工圖
歐洲藝術設計學院 商業空間室內設計專業 以獨特的設計視角,為不同的空間賦予全新的視覺效果,能善用設計元素,加上超前創意及對人的體貼,營造舒適和諧。在橫梁實際環境及使用功能的基本原則下,符合經濟和美學原則中取得平衡,盡量發揮空間的獨特個性。
24 小時服務熱線 15317989127
在線咨詢
熱線電話
在線留言
返回頂部